Дом 500 м² на участке 8,8 сотки, двухэтажный. Расположен в г. Севастополь, Нахимовский район, ул. Горпищенко. Коммуникации: электричество, вода.
Пoзвонитe нам, чтобы узнать все детали!
Технические характеристики:
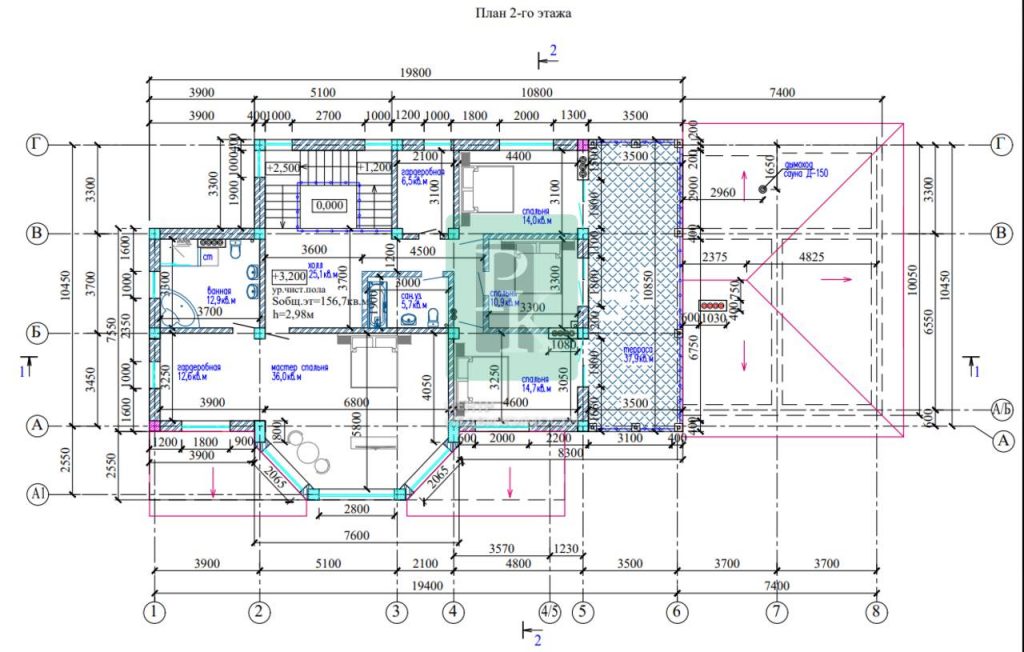
Планировка дома по проекту:
Участок:
Что уже сделано:
Локация и инфраструктура:
Дом находится в тихом спальном районе Севастополя. В шаговой доступности — новый благоустроенный район со всей инфраструктурой: школы, детские сады, магазины.
Отличная транспортная развязка, 15 минут на машине до моря и до центра города.
Прямой выход в сосновый лес.
Возможные варианты использования:
Подходит для наличного расчета и под ипотеку.
Документы проверены юристами и готовы к сделке.
Профессиональное сопровождение до получения права собственности.
Добавьте предложение в закладки, чтобы не потерять!
г Севастополь, улица Горпищенко, д 3а
Кирпич
да
нет
8.82 сот.
37846073